
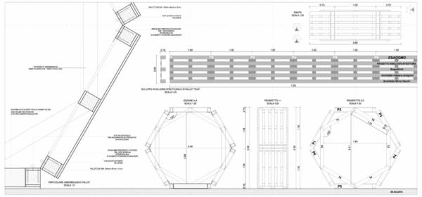
This tutorial by Fabiana Aneghini & Mirco Vacchi from EsagOmo will show you how to make a hexagonal Pallet Module for exhibitions from recycled wooden pallets (as seen in our post EsagOmo: A Pallet Module Made For Exhibitions).
Create an outstanding Pallet Module for exhibitions or a kiosk or other uses!
- 6 Pallets.
- Approximately 6 hours to make it.
- Need some skills to do it, we evaluated this project as a medium difficulty project.
Protected: A Pallet Module For Exhibitions (Esagomo)
Size: 10 MB
447 Downloads










